PRICE : 510.000 EUROS
UNDER CONSTRUCTION PROJECT OF THREE VILLAS IN THE PICTURESQUE VILLAGE OF KOKKINO CHORIO
In the picturesque village of Kokkino Chorio we are building three residencies offering panoramic sea and country views.
The villas offers all year-round comfortable living and it is ideal to build your home with magnificent sea views in a traditional and quiet Cretan village. In the front of the property besides the sea you also have an impressive view of Souda bay and the Akrotiri peninsula which completes the flattering location of the buildings.
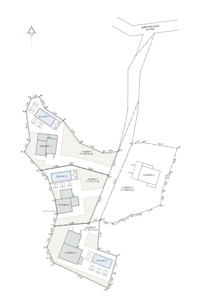
TOPOGRAPHIC PLANS_RESIDENCE _2


3D PLANS





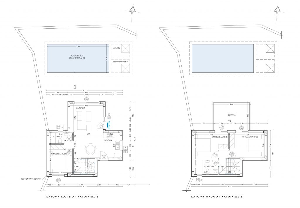
RESIDENCE _2
This is an under-construction villa of 100 sq.m on a plot of 411.17 sq .m , for sale in the panoramic village of Kokkino Chorio , Chania Crete, located in the Apokoronas area.
The property has 3 bedrooms, one bedroom situated on the ground floor and the other two in the upper floor. On the ground floor we have a bedroom, a generous living room space, a fully equipped kitchen without electrical appliances and a bathroom with shower. The upper floor consists of two bedrooms and a shared bathroom with shower. This property comes with a 30,80m2 private pool, a stone wall surrounding the plot and a private parking space made of industrial concrete.
SURROUNDING AREA
In 2-minute drive from the villas you can find a mini market and a taverna in Kokkino Chorio or just 3 minutes’ drive from the villas, in the lovely village of Plaka , there are plenty of tavernas, bars, mini -markets, plants/flowers shop, local brewery .
Just a bit further there is Almyrida beach resort where you have a multiple choice of local fish tavernas, cocktail bars, shops, traditional restaurants , diving centers and beautiful sandy beaches with clear waters.
FEATURES
- 160-liter solar collector
- The exterior walls will have thermal insulation and the terrace will have thermal and waterproof insulation
- Heat pump for heating + cooling
- Built-in wardrobes
- Fully equipped kitchen without electrical appliances
- Aluminum doors and windows with double glazing and screens
- Aluminum pergolas
- Private pool 30.80 sq.m.
- Fenced plot with stone walls
- Industrial concrete parking area.
VIEW : seaview
The villas offers all year-round comfortable living and it is ideal to build your home with magnificent sea views in a traditional and quiet Cretan village. In the front of the property besides the sea you also have an impressive view of Souda bay and the Akrotiri peninsula which completes the flattering location of the buildings.