ΤΙΜΗ :510.000 ΕΥΡΩ
Στο γραφικό χωριό Κόκκινο Χωριό κατασκευάζουμε τρεις κατοικίες με πανοραμική θέα στη θάλασσα και την εξοχή.
Οι βίλες προσφέρουν άνετη διαβίωση όλο το χρόνο και είναι ιδανικές για να χτίσετε το σπίτι σας με μαγευτική θέα στη θάλασσα, σε ένα παραδοσιακό και ήσυχο κρητικό χωριό. Μπροστά από το ακίνητο, εκτός από τη θάλασσα, έχετε επίσης εντυπωσιακή θέα στον κόλπο της Σούδας και στη χερσόνησο του Ακρωτηρίου, που συμπληρώνει την ευνοϊκή τοποθεσία των κτιρίων.
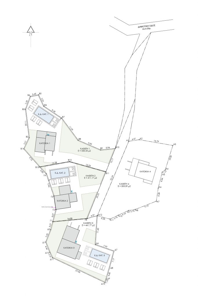
ΤΟΠΟΓΡΑΦΙΚΟ ΣΧΕΔΙΟ


ΦΩΤΟΡΕΑΛΙΣΤΙΚΑ ΣΧΕΔΙΑ 3D



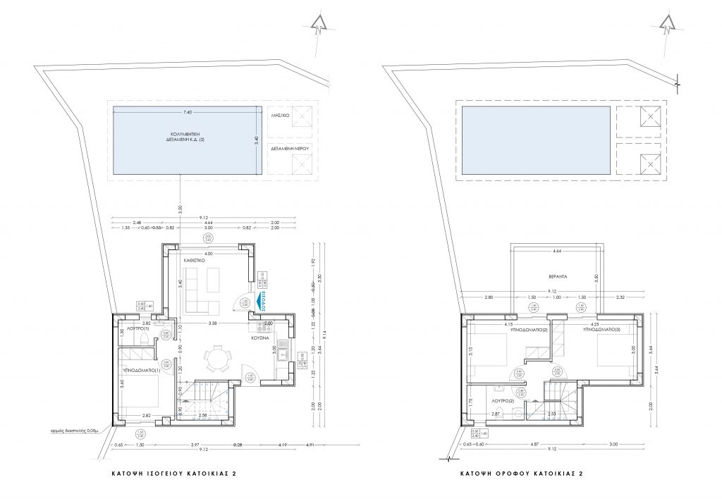
ΚΑΤΟΙΚΙΑ 2
Πρόκειται για μια υπό κατασκευή βίλα 100 τ.μ. σε οικόπεδο 411,17 τ.μ., προς πώληση στο χωριό με πανοραμική θέα Κόκκινο Χωριό, Χανιά Κρήτη, που βρίσκεται στην περιοχή του Αποκόρωνα.
Το ακίνητο διαθέτει 3 υπνοδωμάτια, ένα υπνοδωμάτιο στο ισόγειο και τα άλλα δύο στον επάνω όροφο. Στο ισόγειο έχουμε ένα υπνοδωμάτιο, ένα ευρύχωρο σαλόνι, μια πλήρως εξοπλισμένη κουζίνα χωρίς ηλεκτρικές συσκευές και ένα μπάνιο με ντους. Ο επάνω όροφος αποτελείται από δύο υπνοδωμάτια και ένα κοινό μπάνιο με ντους. Αυτό το ακίνητο διαθέτει ιδιωτική πισίνα 30,80 τ.μ., πέτρινο τοίχο που περιβάλλει το οικόπεδο και ιδιωτικό χώρο στάθμευσης από βιομηχανικό σκυρόδεμα.
ΠΕΡΙΟΧΗ
Σε απόσταση 2 λεπτών με το αυτοκίνητο από τις βίλες θα βρείτε ένα μίνι μάρκετ και μια ταβέρνα στο Κόκκινο Χωριό, ενώ σε απόσταση μόλις 3 λεπτών με το αυτοκίνητο από τις βίλες, στο όμορφο χωριό Πλάκα, υπάρχουν πολλές ταβέρνες, μπαρ, μίνι μάρκετ , ανθοπωλεία και τοπικό ζυθοποιό.
Λίγο πιο μακριά βρίσκεται το παραθαλάσσιο θέρετρο Αλμυρίδα, όπου έχετε πολλές επιλογές από τοπικές ψαροταβέρνες, κοκτέιλ μπαρ, καταστήματα, παραδοσιακά εστιατόρια, καταδυτικά κέντρα και όμορφες αμμώδεις παραλίες με καθαρά νερά.
ΧΑΡΑΚΤΗΡΙΣΤΙΚΑ
Ηλιακός συλλέκτης 160 λίτρων.
Οι εξωτερικοί τοίχοι θα έχουν θερμομόνωση και η βεράντα θα έχει θερμομόνωση και αδιαβροχοποίηση.
Αντλία θερμότητας για θέρμανση + ψύξη.
Εντοιχισμένες ντουλάπες.
Πλήρως εξοπλισμένη κουζίνα χωρίς ηλεκτρικές συσκευές.
Αλουμινένιες πόρτες και παράθυρα με διπλά τζάμια και σίτες.
Αλουμινένιες πέργκολες.
Ιδιωτική πισίνα 30,80 τ.μ.
Περιφραγμένο οικόπεδο με πέτρινους τοίχους.
Βιομηχανικός χώρος στάθμευσης από μπετόν.ΘΕΑ: θέα στη θάλασσα
Οι βίλες προσφέρουν άνετη διαβίωση όλο το χρόνο και είναι ιδανικές για να χτίσετε το σπίτι σας με υπέροχη θέα στη θάλασσα σε ένα παραδοσιακό και ήσυχο κρητικό χωριό. Μπροστά από το ακίνητο, εκτός από τη θάλασσα, έχετε επίσης εντυπωσιακή θέα στον κόλπο της Σούδας και στη χερσόνησο του Ακρωτηρίου, που συμπληρώνει την κολακευτική τοποθεσία των κτιρίων.
facebook.com/benakisconstructions
instagram.com/benakisconstructions
youtube.com/benakisconstructions