














RESIDENCE 3 PRIX : 530 .000 EUROS
Dans le village pittoresque de Kokkino Chorio, nous construisons trois résidences avec vue panoramique sur la mer et la campagne.
Les villas offrent un séjour confortable toute l’année et sont idéales pour construire votre maison avec une vue magnifique sur la mer, dans un village crétois traditionnel et tranquille. Devant la propriété, outre la mer, vous avez également une vue imprenable sur la baie de Souda et la péninsule d’Akrotiri, ce qui complète l’emplacement privilégié des bâtiments.
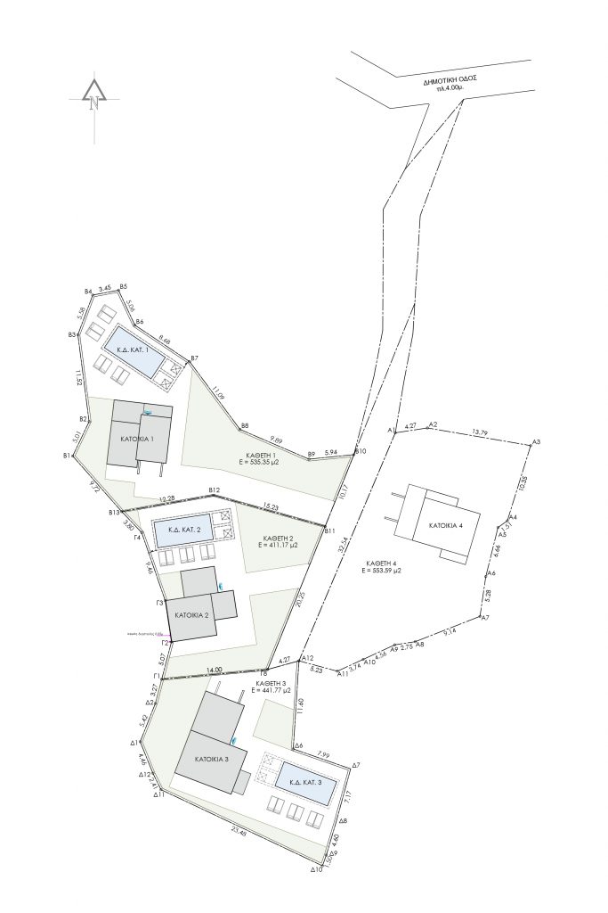
PLANS TOPOGRAPHIQUES


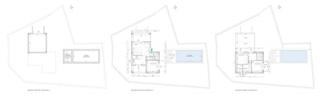
3D PLANS



KATOIKIA _ 3
Il s’agit d’une villa en construction de 100 m² sur un terrain de 441,77 m² à vendre dans le village de Kokkino Chorio, à La Canée, en Crète, situé dans la région d’Apokoronas.
La propriété dispose de 3 chambres, une au rez-de-chaussée et les deux autres à l’étage. Au rez-de-chaussée, il y a une chambre, un salon spacieux, une cuisine entièrement équipée sans appareils électroménagers et une salle de bain avec douche. L’étage comprend deux chambres et deux salles de bains avec douche. La propriété dispose également d’un sous-sol de 26,97 m² qui peut être utilisé comme espace de rangement ou à d’autres fins. La propriété dispose d’une piscine privée de 30,80 m², d’un mur en pierre qui entoure le terrain et d’un parking privé en béton industriel.
ENVIRONNEMENT
À 2 minutes en voiture des villas, vous trouverez une supérette et une taverne à Kokkino Chorio, ou à seulement 3 minutes en voiture des villas, dans le magnifique village de Plaka, où vous trouverez de nombreuses tavernes, bars, supérettes, fleuristes et brasseries locales.
Un peu plus loin se trouve la station balnéaire d’Almyrida, où vous trouverez de nombreux choix de tavernes de poisson locales, de bars à cocktails, de boutiques, de restaurants traditionnels, de centres de plongée et de belles plages de sable fin aux eaux cristallines.
CARACTÉRISTIQUES
Capteur solaire de 160 litres.
Les murs extérieurs seront isolés thermiquement et la terrasse sera isolée thermiquement et imperméabilisée.
Pompe à chaleur pour le chauffage + le refroidissement.
Armoires encastrées.
Cuisine entièrement équipée sans appareils électroménagers.
Portes et fenêtres en aluminium avec double vitrage et moustiquaires.
Pergolas en aluminium.
Piscine privée de 30,80 m².
Terrain clôturé avec des murs en pierre.
Parking industriel en béton.
VUE : vue sur la mer
Les villas offrent un confort de vie tout au long de l’année et sont idéales pour construire votre maison avec une vue magnifique sur la mer dans un village crétois traditionnel et tranquille. Devant la propriété, outre la mer, vous avez également une vue imprenable sur la baie de Souda et la péninsule d’Akrotiri, qui complète l’emplacement flatteur des bâtiments.
facebook.com/benakisconstructions
instagram.com/benakisconstructions
youtube.com/benakisconstructions