PRIX : 510.000 EUROS
Dans le village pittoresque de Kokkino Chorio, nous construisons trois résidences avec vue panoramique sur la mer et la campagne.
Les villas offrent un confort de vie tout au long de l’année et sont idéales pour construire votre maison avec une vue imprenable sur la mer, dans un village crétois traditionnel et paisible. Devant la propriété, outre la mer, vous avez également une vue imprenable sur la baie de Souda et la péninsule d’Akrotiri, ce qui complète l’emplacement privilégié des bâtiments.
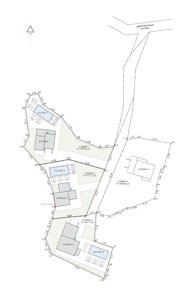
PLAN TOPOGRAPHIQUE


3D PLANS

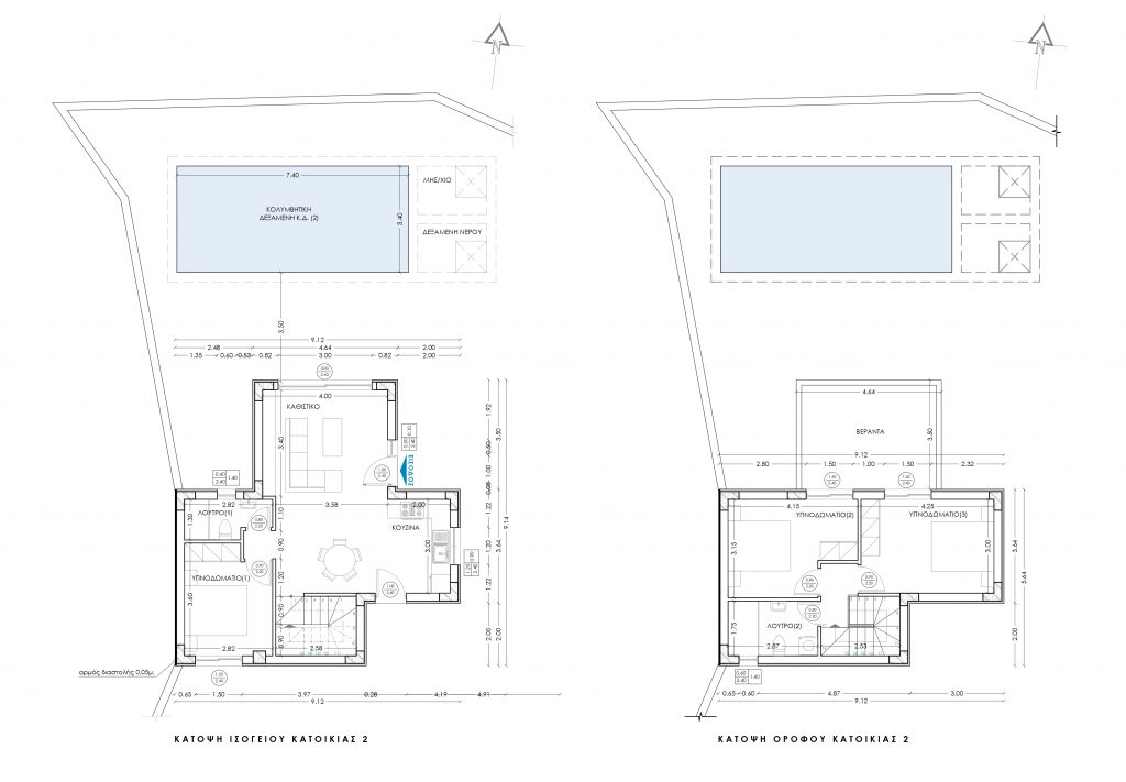
RÉSIDENCE 2
Il s’agit d’une villa en construction de 100 m² sur un terrain de 411,17 m², à vendre dans le village avec vue panoramique de Kokkino Chorio, Chania, Crète, situé dans la région d’Apokoronas.
La propriété dispose de 3 chambres, une au rez-de-chaussée et les deux autres à l’étage. Au rez-de-chaussée, nous avons une chambre, un salon spacieux, une cuisine entièrement équipée sans appareils électroménagers et une salle de bain avec douche. L’étage comprend deux chambres et une salle de bain commune avec douche. Cette propriété dispose d’une piscine privée de 30,80 m², d’un mur en pierre qui entoure le terrain et d’un parking privé en béton industriel.
ENVIRONNEMENT
À 2 minutes en voiture des villas, vous trouverez une supérette et une taverne à Kokkino Chorio, tandis qu’à seulement 3 minutes en voiture des villas, dans le magnifique village de Plaka, vous trouverez de nombreuses tavernes, bars, supérettes, fleuristes et une brasserie locale.
Un peu plus loin se trouve la station balnéaire d’Almyrida, où vous trouverez de nombreux choix de tavernes de poisson locales, de bars à cocktails, de boutiques, de restaurants traditionnels, de centres de plongée et de belles plages de sable fin aux eaux cristallines.
CARACTÉRISTIQUES
Capteur solaire de 160 litres.
Les murs extérieurs seront isolés thermiquement et la terrasse sera isolée thermiquement et imperméabilisée.
Pompe à chaleur pour le chauffage + le refroidissement.
Armoires encastrées.
Cuisine entièrement équipée sans appareils électroménagers.
Portes et fenêtres en aluminium avec double vitrage et moustiquaires.
Pergolas en aluminium.
Piscine privée de 30,80 m².
Terrain clôturé avec des murs en pierre.
Parking industriel en béton.
VUE : vue sur la mer
Les villas offrent un confort de vie tout au long de l’année et sont idéales pour construire votre maison avec une vue magnifique sur la mer dans un village crétois traditionnel et tranquille. Devant la propriété, outre la mer, vous avez également une vue imprenable sur la baie de Souda et la péninsule d’Akrotiri, qui complète l’emplacement flatteur des bâtiments.
facebook.com/benakisconstructions
instagram.com/benakisconstructions
youtube.com/benakisconstructions